您所在的位置:主页 > 山西视窗 > 家居 > 正文

他的新家装修得很简单,但却很温馨,住进去让人心安,生活很自在

2020-08-10 14:20:53 来源: 阅读:-

来自农村的陈先生在杭州打拼有几年了,凭借自己的奋发努力,终于买下一套三居室,准备在这里迎接他的妻子,开启人生中的下一段旅程。房子买下来面临着装修问题,原本家庭条件不是很好再加上买房,几乎花光积蓄,按陈先生的原话讲,房子只能选择“穷装”,于是想到了现代北欧风格。

他的新家装修得很简单,但却很温馨,住进去让人心安,生活很自在

相信在不少人的观念里,会和陈先生一样,认为北欧风格就是穷装,它室内多以简单的造型搭配简约家具,让家看上去“没有什么贵重的装饰物”,但就是这样的一种简单,北欧风格照样风靡全世界,深受到年轻人的喜欢,成为首选的装修风格。

他的新家装修得很简单,但却很温馨,住进去让人心安,生活很自在

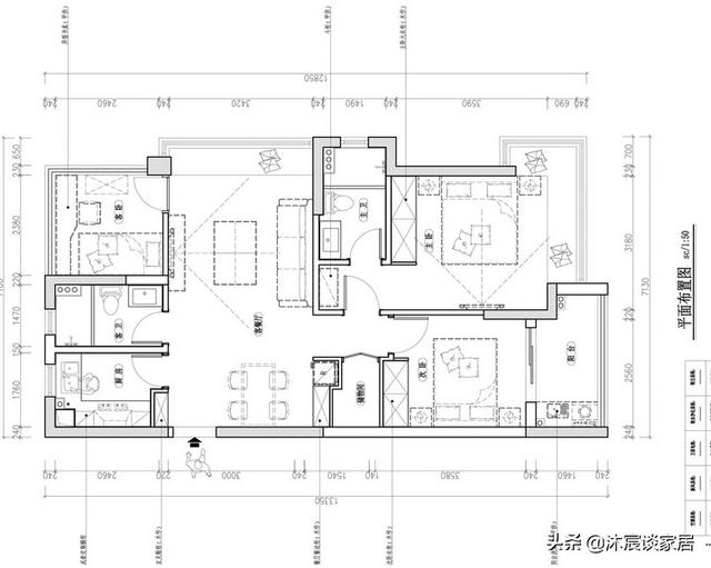
▲陈先生新家是一套100平方的三居室,整体布局合理,有两室朝南。因为要考虑把母亲接来,方便照顾,所以保留了三居室,这样室内结构不能做较大改造,上面是最终的平面布置。我们一起去看看他的新家。

玄关

他的新家装修得很简单,但却很温馨,住进去让人心安,生活很自在

▲进门左边设置一个常规嵌入式鞋柜,原来是没有摆放鞋柜的位置,占用厨房部分空间,制作一个中间镂空式鞋柜,白色柜体加咖啡点缀,满足陈先生换鞋所需。镂空式设计也方便回家随手放手机和钥匙等小物件。

客厅

他的新家装修得很简单,但却很温馨,住进去让人心安,生活很自在

▲整个客餐厅连一体的空间,的确没有什么装饰物,但该有的功能它都有。我们先看看客厅。

空间里采用浅灰色墙漆,搭配素雅白色顶面和浅灰色瓷砖,呈现一个落落大方,简洁明了的活动空间。方正的客厅里摆放灰色三人位沙发,简约高级。整个空间纯色调显得非常清爽,一个纯粹为生活而打造的空间,少了浮夸的硬装堆砌,真心感受到家的温馨舒适。

他的新家装修得很简单,但却很温馨,住进去让人心安,生活很自在


推荐阅读:今日微商网